信州たかもり温泉リニューアルの設計状況
設計状況についてお知らせします。


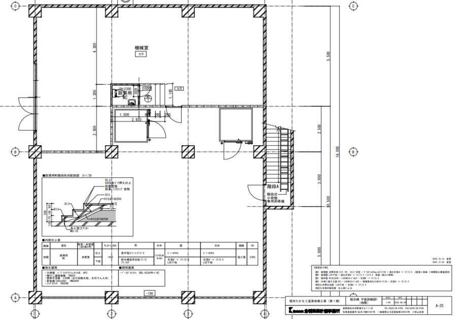
.png)
基本設計の説明会を開催しました
基本設計について、説明会を開催しました。
〇第1回
日時:令和7年4月17日木曜日 午後7時から
場所:やすらぎ荘2階大ホール
〇第2回
日時:令和7年4月19日土曜日 午後3時から
場所:福祉センター2階大ホール
皆様からのご意見を募集します
募集は終了しました
高森町では、信州たかもり温泉湯ヶ洞・御大の館の施設改修を計画しています。
このたび基本設計が整いましたので、町民をはじめ施設の利用者にお知らせし、実施設計案に反映していくため再度ご意見・ご感想を募集します。
基本設計(概要)
基本設計の提示場所
以下の場所でも掲示しています。
・信州たかもり温泉 御大の館 湯ヶ洞
ご意見の提出方法
下記のいずれかの方法で募集します。
(1)専用フォームによる回答
回答フォームはこちら
(2)設計掲示場所備え付けの意見箱に投函
意見等記入用紙 (DOCX 19.2KB)
意見等記入用紙 (PDF 407KB) ※設計案掲示場所にも意見用紙があります。
意見募集期間
令和7年4月8日火曜日から令和7年5月20日火曜日まで
いただいた意見に対する回答
提出された意見等の取扱い
1.いただいた意見等は、今後の設計等の参考とさせていただきます。
2.ご意見等に対する個別の回答はいたしませんのでご了承ください。
3.電話や口頭によるご意見等の受付は行いません。
4.提出いただいた書類等は返却しません。
▼▼これまでの信州たかもり温泉リニューアルに関する検討経過はこちら▼▼
